丫空间介绍 ·丫空间(www.yaspace.cn),全国性活动内容平台,涉及展览展示、会议、庆祝活动、团建拓展、私人活动、竞技赛事、拍摄等各类活动图文、短视频内容的记录、传播。 ·用户通过丫空间可以浏览、筛选各类活动内容、活动商家、活动资源;商家通过丫空间可以发布、分享场地或业务信息、活动图文、短视频等活动内容进行市场营销。 ,丫空间已汇聚特色场地,虚拟空间,秀场/发布中心:艺术/展览馆,演出场馆。会所/俱乐部,公寓别墅/美趴,商场/步行街,酒店/度假村,影棚/演播厅,体育场馆,户外/广场。婚礼/宴会场地 会议中心,会展中心、剧场/剧院,众创空间/路演,会议室/培训厅,咖啡/书店、酒吧/餐厅、游船/游艇等全国各类场地资源。

上海祁安路站商业综合体
Qian Road Commercial Complex
中国, 上海
Shanghai, China
“人们来到城市是为了生活,人们居住在城市是为了生活得更好。”
——亚里士多德
引 子
_
城市是时代进步的产物,然而,城市的快速发展也带来了一系列问题:千篇一律的建筑形象,单一匮乏的公共空间,冷漠无趣的社区环境、似乎越来越难满足城市居民的生活情趣、社交愿望以及多样性要求。
中国青年报做过调查,40.6%的人表示自己不熟悉邻居,其中12.7%的人“根本不认识”自己的邻居。事实上,市居民日渐消失的社会属性与刻板的城市空间形象、单一空洞的居住空间、平庸均质的城市风貌关系密切。本案中,如何恢复城市居民的“社会属性”,重新修复邻里关系,创造出多样丰富功能的空间、营造温暖生动的社区环境,是我们需思考的重点。
项目背景
_
「区位和辐射圈」
项目位于上海普陀区桃浦镇,东临祁安路,南至连亮路,西至H1-6地块,北至安居金祁新城,地下衔接地铁15号线祁安路站出入口。项目地处普陀桃浦的飞地区域,城市秩序混乱,环境纷杂。两公里范围内辐射26791户居民,地块北侧有上海大学宝山校区,南侧有同济大学沪西校区,同时还有大量的中小学校和幼儿园,基地周边拥有7个公交站点,地铁十五号线祁安路站与地块无缝连接。基地周边交通便捷,潜在消费人群基数较大,然而,周边商业业态单一,以沿街商铺和小规模超市为主,在基地2公里区域内,缺少大体量的商场。

◎区域分析

◎地块周边分析
「TOD社区商业+社区文化+长租公寓 新型复合模式」
祁安路商业综合体定位为集家庭居住、生活购物、娱乐、餐饮美食、休闲、健身、儿童培训及游乐、社区中心等多重业态为一体的社区型商业综合体。总建筑面积为91569㎡,包含60000㎡社区商业、9600㎡社区文化、以及310000㎡长租公寓。
将社区商业、社区文化、长租公寓,三者有机结合,有效地集合了社会资源,产生1+1+1>3的聚合反应。

上海市“十四五”规划纲要中提及:“要强化TOD模式,……以轨道交通站点为中心,通过立体式高密度开发,……形成轨交建设与地区发展相互促进的良性循环。” 2021年5月发布的《关于推进城市一刻钟便民生活圈建设的意见》,表达了国家对于“社区型商业”的支持。
2017年底习近平总书记在十九大报告中提出“建立多主体供给、多渠道保障、租购并举的住房制度”,据同策研究院测算,上海市租房人口约1000万,而租赁市场存在1.9亿万平方米的巨大供需错配,“长租公寓”在政策的倾向和市场的需求下,潜力巨大。

◎街景效果图
场地条件
_
基地北侧为住宅区金祁新城,南侧为规划公园,西侧为养老设施。东侧为上海市文达学校,其形状狭长,进深较薄。分为东西两个地块:H1-7b为商业用地长约228m,宽约90m;西侧H1-7a地块为居住用地,长约112m,宽约80m。场地受到地铁、风井、地铁、高度以及日照等诸多要求的限制。

◎场地条件
设计思路
_
在项目中内含三条最重要的动线
动线一:一层人流,来自地块周边的四种不同人群——老人、公寓租户、周边居民、学生。
动线二:地铁公园租场地多少钱一平方,在垂直方向上直接将地铁人流疏散到社区商业、社区文化以及长租公寓。
动线三:空中停车场,停车场将人流直接引至4层公园租场地多少钱一平方,再从4F上下输送到社区文化与社区商业。



◎滑动查看|剖面图:三条主要的动线
在项目中,我们通过开放、错动、链接、围合、扩展以及置入等手法,融合社区商业、社区文化。公寓三个功能业态,并在建筑中创造出入口广场、城市露台、空中连廊、内向庭院、 空中停车场、空中花园等多个空间。运用高品质的社区环境,重建传统的邻里意识,激发周边居民的创意和活力。

◎设计生成思路
「商业生成」
一层南侧城市界面内退的两个室外空间,清晰地指示出与城市动线相关联的最主要的入口;在二层设置大台阶和四层的屋顶停车花园拉动二、三、四层的人流,形成“三个首层”的概念,提升二、三层、四层商铺的商业价值;另外,在沿连亮路在南面规划绿地的界面上通过体块错落形成城市露台,可形成商业外摆空间,活化城市形象;西侧通过空中连廊与长租公寓连接,可共享绿化空中屋顶花园,为公寓带来独特的体验和溢价。

◎南侧入口广场与二层大台阶

◎地铁出入口与东侧入口广场
「公寓生成」
方案构思时,在建筑外围,我们剔除了传统的住宅围墙,直临城市道路,并留出充足的前场公园,让生态与阳光重新回归街道,回归公众;在建筑中央,运用内向围合式的空间形态和适宜的空间尺度形成相对安静的内部院落,为住户带来了亲切感及归属感。基于对周边环境与日照的回应,建筑外部采用阶梯式设计——建筑的东北角占据了场地中的高点,自东北向西南呈跌落布置,并在体块跌落处形成绿色户外空间。这样的设计丰富了城市天际线和街区形象,在为更多的住户获取南向日照和南侧公园观景资源的同时,也保证几乎每一层的住户都拥有相对独立的空中花园。

◎连亮路街景 建筑形态呈阶梯式跌落




◎公寓前场开放公园以及公寓内院内景
功 能
_
「商业功能与公共空间」
在商业内容上,项目拥有6.0万㎡+0.96㎡的体量,承担社区教育、服务、消费等多种功能,业态包括休闲娱乐、餐饮购物。文化教育和配套服务等;从功能分布上,从下到上,依次布置:-2F至2F零售与餐饮,3F电影院,4F空中停车场,5F社区文化中心,6F至7F屋顶花园。该项目通过地下2层与地铁祁安路站无缝接驳,可将地铁人流有效运送至指定的功能楼层。
一层公共空间内设置了大面积绿化公园、充足的休息区和不同的互动装置,为顾客提供温馨的环境和多样化的体验乐趣,努力营造社交与分享的氛围;七层的屋顶花园为顾客以及公寓住户提供户外休闲与洽谈交流、演讲展览等一系列活动的空间,为客户营造健康生态的社区生活环境,提升周边居民的生活品质。


◎商业前场艺术装置及绿化公园
「长租公寓功能及公共空间」
长租公寓被分为南、北、东三个区域。公寓内部拥有大小不一的居住单元,从独立套间到多居室套间应有尽有,可满足多种特点的客户需求。底层公共空间配以文化入口大堂、健身房、幼儿托管中心和居委办公、社区配套服务等常用功能,二层以上空间串联着健身房、空中花园、共享空间、共享大厅等多种面向住户的社区功能。共享中庭位于建筑东南侧临街的核心区域,可作为休憩、交流、交流、上网冲浪等活动的场所,也是联系东侧商业与公寓的重要链接点。

◎连亮路街景 共享大堂与通向商业的长廊
层层退台的建筑形式和充足的空中花园,活化和丰富了居住空间的内容。我们在其中置入了休憩平台、观赏绿地、儿童活动乐园等功能,旨在保证每一个住户都能享受到专属的户外服务设施。

◎公寓空中花园
我们希望通过对多样的社区公共空间的营造,保持项目在经济、生态以及社会上的可持续性。住户可以在其中交谈、休息、聚会、健身、闲逛、在WiFi区冲浪或者在座椅上观赏风景,享受怡然,品味悠闲。相信在项目建成后,该建筑会成为桃浦社区长租公寓的新典范。
户 型
_
公寓主力户型为面积在25m2左右,共计409套,套数占比为88.7%。其他户型面积在50m2左右,共计52套,套数占比为11.3%
◎户型A 一室一厨一卫 套内面积26m² 337套

◎户型B 一室一厨一卫 套内面积25m² 72套

◎户型C 两室一厅一厨一卫 套内面积50m² 52套


◎主力户型A起居空间

◎主力户型A卫浴区
结 语
_
该项目已与2020年动工,预计在2023年完成。
作为桃浦社区2公里内唯一集居住、文化购物、娱乐、出行、休憩一体的社区商业和社区文化的多功能社区商业综合体,除了满足基本的多元功能诉求之外,应立足社会,具备更多的社会公共性和体验互动性,通过有效的公共空间的连接和互动,修复冰冷的社交关系;应运用自身区位条件以及因住而商、TOD和功能聚合等自身优势,使项目良性稳定地运营;并应在享受TOD所带来的的红利之时,反哺轨道交通的运营维护。
2021年9月金光路商业综合体荣获了世界建筑中国WAF.CHINA杰出设计奖,在欣喜的同时,我们也深感设计师所承担的社会责任之重。正如曼谷的商业The Commons提出的“我们首先要建一个社区,然后才是一个购物中心”,我们应在维护城市形象统一和多样性的同时,以温和谦虚的态度,去聆听都市中那些被忽视的多元群体需求,积极地为城市居民健康、积极、创新的生活趋势创造出更多的发展空间,真正立足“社区”、为“人”服务。


◎施工现场照片
技术图纸
_


◎滑动查看|总平面图


◎滑动查看|一层平面图



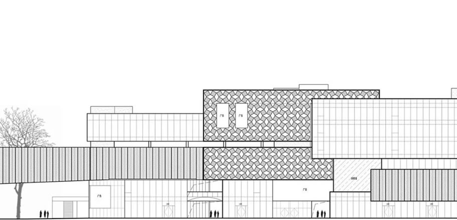
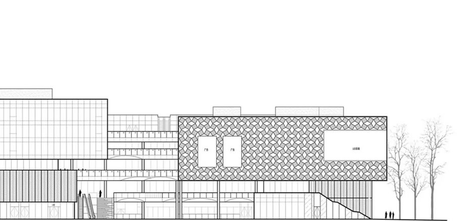
◎滑动查看|立面图

◎商业立面材料

◎公寓立面材料
工程档案
项目名称|上海祁安路站商业综合体
建筑面积| 91569㎡
项目类型| 委托
项目进度| 建设中
项⽬地址| 上海普陀桃浦镇
业主单位 |
业主团队| 钱培林 胡啸 潘佳
设计单位|
总建筑师| 宋照青
副总建筑师|金光贤
项目负责人| 袁穆华 王艺
商业设计团队| 袁穆华 琚轶聪 张翼 袁兴如 顾越
公寓设计团队| 王艺 冯薇之 欧候鹤 李甜 寇天傲(实习) 张正伟(实习)
概念团队| 杨佩燊 王晓晨 李亚霏
景观设计|
景观负责人|章翼
景观设计团队| 侯建邦 衣巧玉 黄其悦 张丹 尤瀚霆
建设单位|
施工图单位|
幕墙单位|
设计开始时间|2018年4月